Заказ чертежей и допуск прямолинейности | Контроль качества обработки

Прямолинейность — ключевой параметр точности в машиностроении. Несоблюдение допуска прямолинейности ведет к биению валов, износу подшипников, разгерметизации соединений и выходу оборудования из строя. Эта статья объяснит, как правильно указывать и проверять допуски прямолинейности на чертежах согласно ГОСТ, чтобы вы могли уверенно заказывать чертежи и контролировать качество изготовления деталей.

Ищете, где заказать чертежи для машиностроения с гарантией качества? Наше конструкторское бюро специализируется на разработке технической документации, где каждый допуск прямолинейности и другие параметры качества обработки рассчитаны оптимально. Это позволяет не только обеспечить точность, но и снизить цену на деталь, что повышает прибыль вашей компании.

Что такое допуск прямолинейности и почему он важен

Допуск прямолинейности — это предельно допустимое отклонение от идеальной прямой, которое указывается на чертеже. Этот параметр критически важен в машиностроении, приборостроении и других высокоточных отраслях.

Правильное назначение допуска имеет прямое влияние на стоимость. Чем строже допуск, тем сложнее и дороже обработка. Например, если деталь не требует микронной точности, назначение излишне жёсткого допуска только увеличит затраты на производство, не принося функциональной выгоды. Наша задача — найти баланс между требованиями к детали и экономической эффективностью.

Согласно ГОСТ 2.308—2011, допуски прямолинейности применяются для:


  • образующих поверхностей (например, конуса);

  • осей отверстий и валов;

  • плоских поверхностей в продольном и поперечном направлениях.



Допуск прямолинейности обозначается специальным знаком — прямой горизонтальной линией (─). В рамке допуска указывается:


  1. Знак допуска (─).

  2. Числовое значение допуска в миллиметрах (например, 0.01).

  3. Буквенное обозначение базы (если есть).

  4. Символ зависимого допуска (Ⓜ, если применимо).


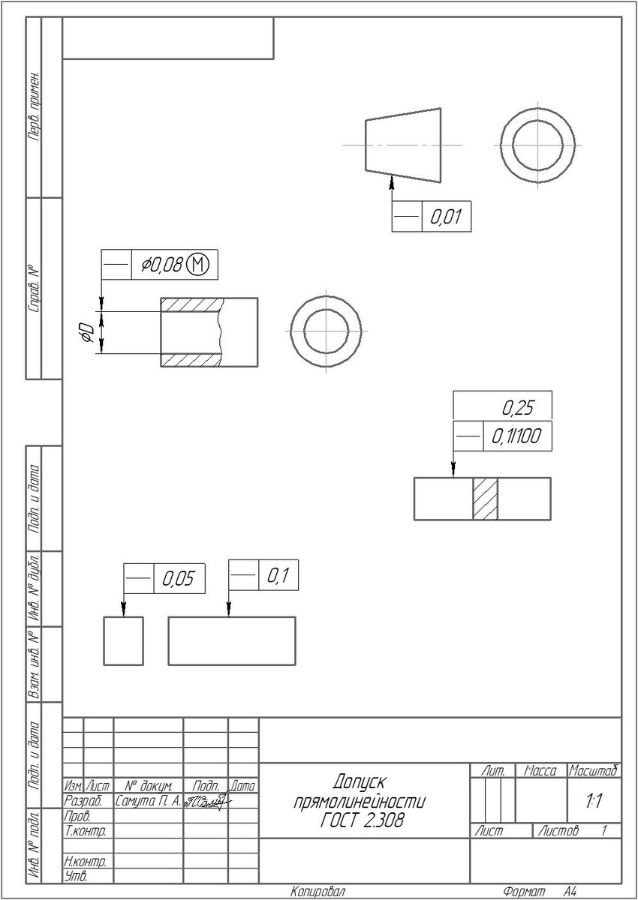
Технический чертёж с примерами применения допуска прямолинейности по стандарту ГОСТ 2.308. Изображен

Примеры допусков прямолинейности и их влияние на стоимость

Мы работаем с различными типами допусков, исходя из конкретных требований вашего проекта.


  • Допуск прямолинейности образующей конуса — 0,01 мм  Что означает: Боковая линия конуса должна быть идеально прямой. Реальная поверхность не должна выходить за пределы воображаемого коридора шириной 0.01 мм.
    Где применяется: Конус Морзе в шпинделях станков, высокоточные конические соединения, золотниковые пары. Нарушение ведет к биению инструмента и потере герметичности.
    Как контролировать: С помощью лекальной линейки «на просвет» с щупом 0.01 мм или на оптиметре.

  • Допуск прямолинейности оси отверстия — 0,08 мм (зависимый допуск) Ось отверстия должна быть прямой. Зависимый допуск (Ⓜ) — ключевая особенность: допуск в 0.08 мм может быть превышен, только если размер отверстия выйдет за пределы поля допуска (станет больше). Это компромисс между точностью и стоимостью.
    Где применяется: Отверстия под подшипники в корпусах, ответственные отверстия в рычажных механизмах.
    Как контролировать: Калибровочными оправками или с помощью координатно-измерительной машины (КИМ).

  • Комбинированный допуск поверхности — 0,25 мм на всей длине и 0,1 мм на 100 мм. Что означает: Комбинированное требование:


    1. На всей длине поверхности отклонение не более 0.25 мм.

    2. На любом участке длиной 100 мм отклонение не более 0.1 мм.
      Где применяется: Длинные направляющие станин станков, поверочные плиты. Общий допуск контролирует общий изгиб, локальный — мелкие неровности и волны.
      Как контролировать: Поверочной линейкой и щупом, высокоточным уровнем или лазерным нивелиром.


  • Допуск прямолинейности в поперечном (0.05 мм) и продольном (0.1 мм) направлении. Что означает: Поверхность должна быть прямолинейной в двух направлениях, но с разной точностью. Это аналог допуска плоскостности.
    Где применяется: Широкие направляющие, плоскости разъема корпусов (например, крышка и корпус редуктора).
    Как контролировать: Поверочной линейкой, которую прикладывают последовательно в продольном и поперечном направлениях.


Контроль качества

Контроль качества обработки — это ключевой этап. 


  • Классические методы: метод "на просвет" и метод "на краску" с использованием поверочных линеек. Они позволяют быстро и надёжно проверить прямолинейность на производстве.

  • Современные технологии: координатно-измерительные машины (КИМ), оптические приборы (автоколлиматоры, интерферометры) и лазерные нивелиры. Эти методы используются для самых сложных и ответственных деталей.

Понимание и правильное применение допусков прямолинейности — признак высокой инженерной культуры и производства. Это не просто формальность, а инструмент управления качеством и стоимостью продукции.


  • Для конических соединений контролируйте образующую.

  • Для отверстий под посадку используйте зависимые допуски осей.

  • Для направляющих задавайте комбинированные допуски (общий и локальный).

  • Для плоских поверхностей указывайте допуски в разных направлениях.

Как точный чертеж сбережет ваши деньги и нервы

"Точный чертеж" для многих звучит как что-то из мира инженеров и заводов, но это напрямую влияет на стоимость товара, его качество и, в конечном счете, на прибыль бизнеса. Эта статья — ваш проводник в мир скрытых нюансов, которые делают одни детали дешевыми, а другие — неоправданно дорогими. Мы раскроем «неочевидные» факты о допусках и расскажем, как это работает на самом деле.

Представьте, что вы хотите заказать металлический вал. Можно сказать «сделайте его идеально ровным» или «сделайте его с допуском в 0.01 мм». Казалось бы, почти одно и то же, но разница в стоимости будет колоссальной. Почему?

Допуск — это разрешенное отклонение от идеальной формы. Чем он меньше, тем сложнее и дольше процесс обработки. Каждый дополнительный «ноль» после запятой в значении допуска требует:


  • Более дорогого оборудования: Вместо обычного станка нужен высокоточный шлифовальный или лазерный.

  • Сложного контроля: Проверять микронные отклонения можно только в специальных лабораториях с использованием дорогостоящих измерительных машин.

  • Квалифицированных рабочих: Оператор должен быть специалистом высочайшего класса.


Опытный инженер-конструктор никогда не назначит сверхточный допуск просто «на всякий случай». Он знает, что каждый микрон стоит денег и времени. Это как заказывать доставку пиццы на вертолете: да, она будет доставлена идеально, но цена будет совершенно неоправданной. Наша цель — найти баланс между точностью и стоимостью.


Мы привыкли думать, что чем точнее, тем лучше. Однако в мире производства это не всегда так. Давайте разберёмся, почему.

  1. Избыточная точность — это лишние траты. Деталь, которая работает в паре с другой с большим зазором (например, ось и втулка), не нуждается в строгом допуске прямолинейности. Назначая допуск 0.001 мм, вы платите за точность, которая просто не будет использоваться в конечном изделии.

  2. Эффект «снежного кома». Одна избыточно точная деталь влечет за собой необходимость в таких же точных смежных деталях и инструментах для их сборки. Стоимость проекта возрастает в геометрической прогрессии.

  3. Зависимый допуск как гениальное решение. Инженеры-конструкторы используют так называемый зависимый допуск (обозначается символом Ⓜ). Это означает, что если реальный размер детали немного отклонился в допустимую сторону, то и допуск прямолинейности может быть чуть ослаблен. Это даёт производителю больше «свободы», упрощает обработку и снижает её цену, не влияя на функциональность. Этот тонкий нюанс — один из главных секретов опытных конструкторов.

Представьте, что в компании проходит совещание. Молодой инженер предлагает самый строгий допуск, потому что «так надежнее». Опытный конструктор возражает: «Нам нужно не „надежнее“, а „достаточно надежно“, чтобы клиент получил прибыль. Твой допуск увеличит стоимость детали на 30%, и мы проиграем тендер». В этом и состоит суть.

Как избежать ошибок и сэкономить


При заказе чертежей важно не просто получить красивую картинку, а документ, который позволит произвести деталь оптимально.


  1. Обсудите назначение детали. Расскажите конструктору, где и как будет работать ваша деталь. От этого зависит, какой допуск прямолинейности (и другие допуски) будет назначен.

  2. Не стесняйтесь спрашивать «Почему так?». Грамотный инженер всегда объяснит, почему он выбрал тот или иной допуск. Например, почему для длинной направляющей станка был назначен комбинированный допуск (общий и локальный). Это показывает не только его экспертность, но и вашу заинтересованность в конечном результате.

  3. Используйте зависимые допуски. Если в вашей детали важна собираемость, а не абсолютная точность каждой поверхности, то зависимые допуски — ваш лучший друг.


Правильно назначенный допуск — это не просто строчка на чертеже. Это инструмент управления стоимостью, качеством и прибылью. Понимание этой связи позволяет принимать осмысленные решения и выбирать партнёров, которые не просто делают «идеально», а делают оптимально для вашего бизнеса.

Закажите чертежи у нас: баланс точности и цены 

Мы гарантируем, что каждый инженерный чертёж, разработанный нашими специалистами, будет соответствовать всем требованиям ГОСТ и функциональному назначению детали. Не просто создаём документацию, а оптимизируем допуски таким образом, чтобы ваша продукция была не только качественной, но и конкурентоспособной по цене.

Свяжитесь с нами, чтобы заказать чертежи для машиностроения и получить консультацию. Поможем вам найти идеальный баланс между техническими требованиями и экономикой проекта, что приведёт к повышению прибыли вашей компании.


Удалить товар

Вы точно хотите удалить выбранный товар? Отменить данное действие будет невозможно.