Мы рады предоставить вам первоклассную услугу по проектированию малых архитектурных форм (МАФ) из металла. Проектирование малых архитектурных форм из металла используется в различных отраслях промышленности, а также для решения индивидуальных задач.
Предлагаем профессиональное проектирование малых архитектурных форм из металла
Нами сконструированные изделия могут быть использованы не только в качестве декоративных элементов, но и в качестве предметов для обустройства ландшафтного дизайна. Они могут использоваться как для украшения частных владений, так и для оформления открытых пространств: парков, скверов, площадей, бульваров. Эти формы могут быть сделаны из различных материалов, таких как сталь, алюминий, медь, нержавеющая сталь и другие.
Проектирование садово-парковой мебели и оборудования:
- оборудование общего пользования — скамьи, светильники, урны и т.д,
- специализированное оборудование мест отдыха, детских площадок, спортивных сооружений, водных устройств, пляжей и т.д.,
- хозяйственное оборудование — будки-бытовки, газовые ящики, освещение, мусорные контейнеры, и т.д,
- для разграничения пространства - лестницы, ворота, ограждения и т.д,
- всевозможные формы изделий благоустройства дорожного покрытия и пешеходных зон.
Услуга изготовления чертежей для МАФ популярный способ создания уникальных изделий.
Проектирование малых архитектурных форм из металла - это популярный способ создания уникальных, ярких, стильных, но при этом прочных, простых и функциональных структур.
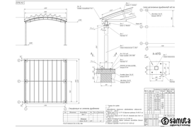
Услуга изготовления чертежей для МАФ предполагает разработку точных чертежей, соответствующих указанным требованиям. Чертеж содержит всю необходимую информацию, необходимую для создания изделия, включая размеры, свойства, состав, цвет, функциональные свойства.
Услуга изготовления чертежа для производства МАФ необходима, чтобы помочь бизнесу быстрее и эффективнее выполнять производство изделий. Наша услуга поможет вам сэкономить время и ресурсы, поскольку мы предоставляем вам высококачественные чертежи, используя наше многолетнее опыт и последние технологии. Мы используем самые современные программы для создания чертежей, которые помогут вам получить более точные и детализированные результаты. Наши чертежи используются в производстве продукции по всему миру уже более 10 лет, и мы успешно помогли нашим клиентам повысить производительность и снизить затраты на производство. Присоединяйтесь к нам и получите преимущества от использования наших высококачественных чертежей для производства МАФ.
К основным преимуществам металлоконструкций можно отнести:
- возможность изготовить конструкции по индивидуальным размерам и формам;
- возможность создания нестандартных решений;
- устойчивость к механическим воздействиям;
- долговечность.
Этапы работы по проектированию МАФ.
Этапы работы по услуге проектирование малых архитектурных форм из металла включают в себя:
- Прием заказа;
- Составление технического задания;
- Анализ исходных данных, сбор информации;
- Разработка комплекта чертежей по заданию;
- Обсуждение, утверждение чертежей конструкции с заказчиком;
- Формирование финальной версии комплекта документов.
Результат конструирования МАФ.
В результате услуги, клиенты могут получить:
- Точный, качественный комплект чертежей.
- 3D-модель, соответствующую указанным требованиям.
Индивидуальный подход и сервис, превосходящий ожидание! Если вы хотите создать уникальную, эстетичную и долговечную архитектурную форму из металла, обращайтесь к нам. У вас есть дополнительные вопросы, напишите в комментариях, мы ответим.
