Технический монтажный чертеж

хит
Артикул: SPA31062022BY
В наличии: 15
цифровой товар
Технический монтажный чертеж
Обозначение формата
А1 594х841 мм
Формат файла чертежа
Portable Document Format (*.pdf)
Тип чертежа
монтажный чертеж (installation drawing)
Тип услуги:
производственная, профессиональная.
По специфике содержания:
Создающая новые потребительные стоимости (новые изделия).
Классификация услуги ОКРБ 007-2012:
74.90.19.200 Услуги в области инжиниринга.
Гарантии согласно договору
12 месяцев
Срок выполнения от
8 дней
Окончательная цена зависит от сложности, уточняется по факту
400 BYN
Квалификация исполнителя работ
высшее техническое инженер механик образование
Дополнительные услуги:
консультации по вопросам монтажного чертежа
Единица измерения
шт

Услуга изготовления монтажного чертежа помогает компаниям быстро и эффективно разработать и реализовать чертежи для монтажа оборудования.


Монтажный чертеж для верной установки изделия


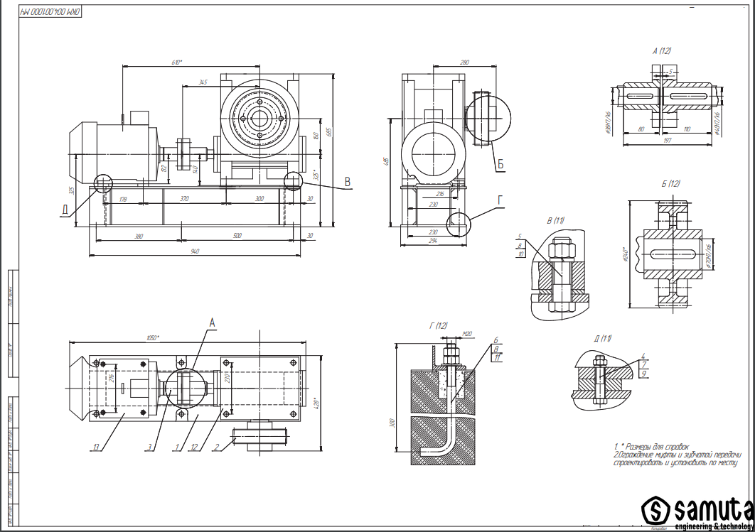
Монтажный чертеж МЧ — документ, содержащий контурное (упрощенное) изображение изделия, а также данные, необходимые для его установки (монтажа) на месте применения. К монтажным чертежам также относят чертежи фундаментов, специально разрабатываемых для установки изделия. Монтажные чертежи – это неотъемлемая часть любого проекта. Они позволяют уменьшить риски, связанные с установкой устройства, и увеличивают эффективность планирования работ. Для успешного монтажа и обслуживания оборудования требуется правильное планирование, соблюдение строгих стандартов.


Montazhnyi chertezh (kod MCh) – dokument, opredeliaiushchii konstruktciiu izdeliia i ego ustavnovku

Технический чертеж - графическое изображение с размерами, пояснениями и обозначениями, четко передающее концепцию или идею физического объекта или группы физических объектов и информацию о том, как объект функционирует или конструируется.


хит
Тип чертежа
Тип чертежа
Дополнительные услуги:
Дополнительные услуги:
Формат файла чертежа
Выберите параметр
Формат файла чертежа
570 BYN / шт
600 BYN
570 BYN / шт
600 BYN

Услуга изготовления монтажного чертежа помогает компаниям быстро и эффективно разработать и реализовать чертежи для монтажа оборудования.


Монтажный чертеж для верной установки изделия


Монтажный чертеж МЧ — документ, содержащий контурное (упрощенное) изображение изделия, а также данные, необходимые для его установки (монтажа) на месте применения. К монтажным чертежам также относят чертежи фундаментов, специально разрабатываемых для установки изделия. Монтажные чертежи – это неотъемлемая часть любого проекта. Они позволяют уменьшить риски, связанные с установкой устройства, и увеличивают эффективность планирования работ. Для успешного монтажа и обслуживания оборудования требуется правильное планирование, соблюдение строгих стандартов.


Montazhnyi chertezh (kod MCh) – dokument, opredeliaiushchii konstruktciiu izdeliia i ego ustavnovku

Технический чертеж - графическое изображение с размерами, пояснениями и обозначениями, четко передающее концепцию или идею физического объекта или группы физических объектов и информацию о том, как объект функционирует или конструируется.


  • Описание

    Монтажный чертеж - это инструкция по установке оборудования и компонентов. Они содержат детальную информацию о процессе установки, а также размеры и расположение компонентов.

    Монтажный чертеж является основным документом для выполнения монтажных работ на объекте заказчика. Его разработка и оформление соответствует всем необходимым стандартам и правилам. Если вам понадобился монтажный чертеж, то мы готовы помочь вам в его оформлении. Для этого у нас имеются все необходимые инструменты и оборудование. Мы можем изготовить монтажный чертёж любого масштаба и формата. При необходимости мы разработаем и оформим монтажный документ для установки сложных изделий.


    Монтажный чертеж для надежной установки оборудования


    Montazhnyi chertezh dlia nadezhnoi ustanovki oborudovaniia

    Для упрощения монтажа и обслуживания оборудования разработчики создали специальные монтажные чертежи. Это детальные рисунки, которые показывают, как устройство следует устанавливать, обслуживать, а также рекомендуют, какие инструменты и материалы следует использовать. Также изготовление монтажных чертежей позволяет удостовериться, что оборудование устанавливается правильно, что дает дополнительную гарантию безопасности


    Монтажный чертеж является неотъемлемой частью процесса монтажа, установки, регулировки изделий. Он представляет собой специальное руководство, которое помогает определить последовательность действий при монтаже, установке и регулировке изделий. В монтажном чертеже указываются все необходимые инструкции по установке и настройке изделия, а также прилагаются схемы и диаграммы. В монтажном чертеже должны быть указаны все необходимые детали и их параметры, а также способы их соединения и монтажа. Также чертеж должен содержать подробную информацию о процессе монтажа, установки и регулировки изделия.

    Монтажный чертеж должен содержать:

    • изображение монтируемого изделия;
    • изображения изделий, применяемых при монтаже, а также полное или частичное изображение устройства (конструкции, фундамента), к которому изделие крепится;
    • установочные и присоединительные размеры с предельными отклонениями;
    • перечень составных частей, необходимых для монтажа;
    • технические требования к монтажу изделия


    Монтажные чертежи выпускают на:

    • изделия, монтируемые на одном определенном месте (устройстве, объекте, фундаменте);
    • изделия, монтируемые на нескольких различных местах (устройствах, объектах).

    Монтажный чертеж выпускают также в тех случаях, когда необходимо показать соединение составных частей комплекса между собой на месте эксплуатации.

    Монтируемое изделие изображается на чертеже упрощенно, показывая его внешние очертания. Подробно показывают элементы конструкций, которые необходимы для правильного монтажа изделия. Устройство (объект, фундамент), к которому крепится монтируемое изделие, изображается упрощенно, показывая только те части, которые необходимы для правильного определения места и способа крепления изделия. Изображение монтируемого изделия и изделий, входящих в комплект монтажных частей, выполняется сплошными основными линиями, а устройство, к которому крепится изделие, - сплошными тонкими линиями


    Большинство важных производственных заданий — даже те, которые используют цифровые производственные технологии — по-прежнему требуют использования технического чертежа. Почему?


    Во-первых, технические монтажные чертежи проверяют, что содержится в файле САПР, давая производителям уверенность в том, что они монтируют именно то, что нужно. Идеальная корреляция между CAD и чертежом указывает на то, что в проекте нет ошибок. После того, как монтаж будет готов, чертеж можно использовать в качестве справочного материала во время проверки и приемки оборудования.


    Во-вторых, технические чертежи могут содержать много другой информации, не содержащейся в файле САПР. Информация, передаваемая через технические чертежи, может включать:

    1. Допуски для конкретных поверхностей.
    2. Требования к отделке поверхности для конкретных поверхностей.
    3. Требования к материалам для конкретных компонентов.

    В-третьих, технические монтажные чертежи могут выполнять юридическую функцию. Они являются частью заказа на поставку и, следовательно, частью контракта: если производитель не может поставить детали в соответствии с требованиями, заказчик может использовать технический чертеж в качестве доказательства того, что проект не был выполнен; с другой стороны, производитель защищен от ответственности, если он следует техническому чертежу. (Это не применяется, если файл САПР указан в качестве юридического документа поверх чертежа.)


    Кроме того, производители часто предпочитают получать технический чертеж вместе с цифровым файлом, потому что они могут быстро оценить такие аспекты детали, как ее геометрия, конструктивные и технологические эллементы, размеры и потенциальная стоимость.


    И, наконец, технические монтажные чертежи — единственный международно признанный способ передачи инженерных инструкций; нет никакой двусмысленности, никакой путаницы и ничего, что потенциально могло бы поставить под угрозу успех проекта. Монтажные чертежи также могут содержать информацию о производственных процессах, о материалах и инструментах, необходимых для установки, а также о производственных процессах. Монтажные чертежи помогают гарантировать безопасную и правильную установку компонентов и обеспечивают их прочность и надежность.


    Эта услуга предоставляет заказчику более эффективное решение, чем другие доступные альтернативы.


    Мы осознаем, насколько важно для наших клиентов иметь надежного партнера в области проектирования и разработки монтажных чертежей. Поэтому мы всегда стремимся быть лучшими в своей области и превосходить ожидания наших клиентов. Она позволяет сэкономить время, средства и усилия, а также позволяет заказчику получить точные, достоверные монтажные чертежи, которые могут быть использованы на месте установки изделия.


    Наша услуга будет полезна бизнесу, так как она поможет сэкономить средства, уменьшить время, необходимое для разработки чертежа, и уменьшить риски, связанные с использованием недостоверных чертежей. Мы уже помогли многим клиентам сэкономить до 30% средств, уменьшить время, необходимое для разработки чертежа, на 50%, уменьшить риски, связанные с использованием недостоверных чертежей, на 95%.

    Nalichie montazhnogo chertezha pozvoljaet uskorit i optimizirovat process montazha, ustanovki i regu

    Наличие монтажного чертежа позволяет ускорить и оптимизировать процесс монтажа, установки и регулировки изделия, а также позволяет избежать ошибок и проблем с качеством. Таким образом, монтажный чертеж играет важную роль в процессе монтажа, установки и регулировки изделий.


    Изготовление монтажного чертежа самостоятельно может привести к необходимости дополнительных измерений и анализа, что может оказаться достаточно сложным. Также самостоятельное изготовление монтажного чертежа может привести к увеличению времени, затраченного на проект, что может привести к увеличению стоимости.

    Обращение к инженеру-конструктору позволяет сэкономить время, уменьшив риск ошибок. Инженер-конструктор имеет опыт в создании монтажных чертежей, который позволяет сделать более эффективный, экономичный и точный чертеж а следомавательно монтаж изделия.


    Мы также предлагаем отличное послепродажное обслуживание. Если у вас есть какие-либо вопросы или опасения по поводу наших чертежей, наша команда экспертов будет готова ответить на них и помочь вам с любыми проблемами, которые могут возникнуть.


    В какой информации вы нуждаетесь, чтобы начать разработку монтажных чертежей?
    Прежде чем реализовать проект, есть необходимость в техническом задании, требованиях к детали или проекту, предоставленной информации о размерах, материалах и других важных параметрах.

    Каковы ваши расценки на разработку монтажных чертежей?
    Расценки на разработку монтажных чертежей зависят от сложности проекта, объема работы и других факторов. Мы обычно составляем индивидуальное коммерческое предложение для каждого клиента.

    Можно ли внести изменения в монтажный чертеж после его завершения?
    Да, мы можем вносить изменения в чертеж после его завершения, но это может повлиять на сроки и стоимость проекта.

    Nasha usluga sozdaniia montazhnogo chertezha - eto bystro, effektivno, kachestvenno.

    Наша услуга создания монтажного чертежа - это быстро, эффективно, качественно. Мы имеем сотрудников-профессионалов, которые являются экспертами в своих областях. Поэтому, если Вы хотите улучшить свою уменьшить риски, связанные с использованием недостоверных чертежей при монтаже, сэкономить средства, и получить точный, достоверный чертeж - наша услуга - это то, что вы ищитe.  Cтрого соблюдаем все правила и нормы, связанные с защитой информации, и гарантируем полную безопасность передаваемых нам данных.


    Кроме того, мы всегда открыты для обратной связи и готовы работать в тесном сотрудничестве с нашими клиентами, чтобы обеспечить максимально удовлетворительный результат. Мы ценим каждого нашего клиента и готовы выслушать все ваши пожелания и требования. Если вам необходимо заказать монтажный чертеж для производственной работы, установки оборудования – наша компания предоставит помощь в проектировании.

    Сопутствующие услуги:

    РАЗРАБОТКА 2D ЭСКИЗОВ И 3D МОДЕЛЕЙ ДЛЯ СТАНКА С ЧПУ И 3D ПРИНТЕРА.


    Дополнительная информация. Что почитать:

    ЛУЧШИЕ ФОРМАТЫ ФАЙЛОВ САПР ДЛЯ СОВМЕСТНОГО ИСПОЛЬЗОВАНИЯ 3D И 2D ФАЙЛОВ


  • Документы

    Cooperation proposal. Industrial design studio. EN.pdf
    349.8 кб, 22 февраля в 10:08
    Predlozhenie o sotrudnichestve. Studija promdizajna. RU.pdf
    360.2 кб, 22 февраля в 10:08
  • Характеристики

    Обозначение формата
    А1 594х841 мм
    Формат файла чертежа
    Portable Document Format (*.pdf)
    Тип чертежа
    монтажный чертеж (installation drawing)
    Тип услуги:
    производственная, профессиональная.
    По специфике содержания:
    Создающая новые потребительные стоимости (новые изделия).
    Классификация услуги ОКРБ 007-2012:
    74.90.19.200 Услуги в области инжиниринга.
    Гарантии согласно договору
    12 месяцев
    Срок выполнения от
    8 дней
    Окончательная цена зависит от сложности, уточняется по факту
    400 BYN
    Квалификация исполнителя работ
    высшее техническое инженер механик образование
    Дополнительные услуги:
    консультации по вопросам монтажного чертежа
    Единица измерения
    шт
  • Комментарии 2

    Добавить комментарий
    Илья Барановский
    Илья Барановский
    Чем отличается монтажный чертеж от чертежа общего вида?
    Комментировать
    Инженер конструктор
    Инженер конструктор
    Монтажный чертеж МЧ — документ, содержащий контурное (упрощенное) изображение изделия, а также данные, необходимые для его установки (монтажа) на месте применения, а общего вида необходим для понимания общего вида и расположения элементов проектируемой конструкции.

Монтажный чертеж - это инструкция по установке оборудования и компонентов. Они содержат детальную информацию о процессе установки, а также размеры и расположение компонентов.

Монтажный чертеж является основным документом для выполнения монтажных работ на объекте заказчика. Его разработка и оформление соответствует всем необходимым стандартам и правилам. Если вам понадобился монтажный чертеж, то мы готовы помочь вам в его оформлении. Для этого у нас имеются все необходимые инструменты и оборудование. Мы можем изготовить монтажный чертёж любого масштаба и формата. При необходимости мы разработаем и оформим монтажный документ для установки сложных изделий.


Монтажный чертеж для надежной установки оборудования


Montazhnyi chertezh dlia nadezhnoi ustanovki oborudovaniia

Для упрощения монтажа и обслуживания оборудования разработчики создали специальные монтажные чертежи. Это детальные рисунки, которые показывают, как устройство следует устанавливать, обслуживать, а также рекомендуют, какие инструменты и материалы следует использовать. Также изготовление монтажных чертежей позволяет удостовериться, что оборудование устанавливается правильно, что дает дополнительную гарантию безопасности


Монтажный чертеж является неотъемлемой частью процесса монтажа, установки, регулировки изделий. Он представляет собой специальное руководство, которое помогает определить последовательность действий при монтаже, установке и регулировке изделий. В монтажном чертеже указываются все необходимые инструкции по установке и настройке изделия, а также прилагаются схемы и диаграммы. В монтажном чертеже должны быть указаны все необходимые детали и их параметры, а также способы их соединения и монтажа. Также чертеж должен содержать подробную информацию о процессе монтажа, установки и регулировки изделия.

Монтажный чертеж должен содержать:

  • изображение монтируемого изделия;
  • изображения изделий, применяемых при монтаже, а также полное или частичное изображение устройства (конструкции, фундамента), к которому изделие крепится;
  • установочные и присоединительные размеры с предельными отклонениями;
  • перечень составных частей, необходимых для монтажа;
  • технические требования к монтажу изделия


Монтажные чертежи выпускают на:

  • изделия, монтируемые на одном определенном месте (устройстве, объекте, фундаменте);
  • изделия, монтируемые на нескольких различных местах (устройствах, объектах).

Монтажный чертеж выпускают также в тех случаях, когда необходимо показать соединение составных частей комплекса между собой на месте эксплуатации.

Монтируемое изделие изображается на чертеже упрощенно, показывая его внешние очертания. Подробно показывают элементы конструкций, которые необходимы для правильного монтажа изделия. Устройство (объект, фундамент), к которому крепится монтируемое изделие, изображается упрощенно, показывая только те части, которые необходимы для правильного определения места и способа крепления изделия. Изображение монтируемого изделия и изделий, входящих в комплект монтажных частей, выполняется сплошными основными линиями, а устройство, к которому крепится изделие, - сплошными тонкими линиями


Большинство важных производственных заданий — даже те, которые используют цифровые производственные технологии — по-прежнему требуют использования технического чертежа. Почему?


Во-первых, технические монтажные чертежи проверяют, что содержится в файле САПР, давая производителям уверенность в том, что они монтируют именно то, что нужно. Идеальная корреляция между CAD и чертежом указывает на то, что в проекте нет ошибок. После того, как монтаж будет готов, чертеж можно использовать в качестве справочного материала во время проверки и приемки оборудования.


Во-вторых, технические чертежи могут содержать много другой информации, не содержащейся в файле САПР. Информация, передаваемая через технические чертежи, может включать:

  1. Допуски для конкретных поверхностей.
  2. Требования к отделке поверхности для конкретных поверхностей.
  3. Требования к материалам для конкретных компонентов.

В-третьих, технические монтажные чертежи могут выполнять юридическую функцию. Они являются частью заказа на поставку и, следовательно, частью контракта: если производитель не может поставить детали в соответствии с требованиями, заказчик может использовать технический чертеж в качестве доказательства того, что проект не был выполнен; с другой стороны, производитель защищен от ответственности, если он следует техническому чертежу. (Это не применяется, если файл САПР указан в качестве юридического документа поверх чертежа.)


Кроме того, производители часто предпочитают получать технический чертеж вместе с цифровым файлом, потому что они могут быстро оценить такие аспекты детали, как ее геометрия, конструктивные и технологические эллементы, размеры и потенциальная стоимость.


И, наконец, технические монтажные чертежи — единственный международно признанный способ передачи инженерных инструкций; нет никакой двусмысленности, никакой путаницы и ничего, что потенциально могло бы поставить под угрозу успех проекта. Монтажные чертежи также могут содержать информацию о производственных процессах, о материалах и инструментах, необходимых для установки, а также о производственных процессах. Монтажные чертежи помогают гарантировать безопасную и правильную установку компонентов и обеспечивают их прочность и надежность.


Эта услуга предоставляет заказчику более эффективное решение, чем другие доступные альтернативы.


Мы осознаем, насколько важно для наших клиентов иметь надежного партнера в области проектирования и разработки монтажных чертежей. Поэтому мы всегда стремимся быть лучшими в своей области и превосходить ожидания наших клиентов. Она позволяет сэкономить время, средства и усилия, а также позволяет заказчику получить точные, достоверные монтажные чертежи, которые могут быть использованы на месте установки изделия.


Наша услуга будет полезна бизнесу, так как она поможет сэкономить средства, уменьшить время, необходимое для разработки чертежа, и уменьшить риски, связанные с использованием недостоверных чертежей. Мы уже помогли многим клиентам сэкономить до 30% средств, уменьшить время, необходимое для разработки чертежа, на 50%, уменьшить риски, связанные с использованием недостоверных чертежей, на 95%.

Nalichie montazhnogo chertezha pozvoljaet uskorit i optimizirovat process montazha, ustanovki i regu

Наличие монтажного чертежа позволяет ускорить и оптимизировать процесс монтажа, установки и регулировки изделия, а также позволяет избежать ошибок и проблем с качеством. Таким образом, монтажный чертеж играет важную роль в процессе монтажа, установки и регулировки изделий.


Изготовление монтажного чертежа самостоятельно может привести к необходимости дополнительных измерений и анализа, что может оказаться достаточно сложным. Также самостоятельное изготовление монтажного чертежа может привести к увеличению времени, затраченного на проект, что может привести к увеличению стоимости.

Обращение к инженеру-конструктору позволяет сэкономить время, уменьшив риск ошибок. Инженер-конструктор имеет опыт в создании монтажных чертежей, который позволяет сделать более эффективный, экономичный и точный чертеж а следомавательно монтаж изделия.


Мы также предлагаем отличное послепродажное обслуживание. Если у вас есть какие-либо вопросы или опасения по поводу наших чертежей, наша команда экспертов будет готова ответить на них и помочь вам с любыми проблемами, которые могут возникнуть.


В какой информации вы нуждаетесь, чтобы начать разработку монтажных чертежей?
Прежде чем реализовать проект, есть необходимость в техническом задании, требованиях к детали или проекту, предоставленной информации о размерах, материалах и других важных параметрах.

Каковы ваши расценки на разработку монтажных чертежей?
Расценки на разработку монтажных чертежей зависят от сложности проекта, объема работы и других факторов. Мы обычно составляем индивидуальное коммерческое предложение для каждого клиента.

Можно ли внести изменения в монтажный чертеж после его завершения?
Да, мы можем вносить изменения в чертеж после его завершения, но это может повлиять на сроки и стоимость проекта.

Nasha usluga sozdaniia montazhnogo chertezha - eto bystro, effektivno, kachestvenno.

Наша услуга создания монтажного чертежа - это быстро, эффективно, качественно. Мы имеем сотрудников-профессионалов, которые являются экспертами в своих областях. Поэтому, если Вы хотите улучшить свою уменьшить риски, связанные с использованием недостоверных чертежей при монтаже, сэкономить средства, и получить точный, достоверный чертeж - наша услуга - это то, что вы ищитe.  Cтрого соблюдаем все правила и нормы, связанные с защитой информации, и гарантируем полную безопасность передаваемых нам данных.


Кроме того, мы всегда открыты для обратной связи и готовы работать в тесном сотрудничестве с нашими клиентами, чтобы обеспечить максимально удовлетворительный результат. Мы ценим каждого нашего клиента и готовы выслушать все ваши пожелания и требования. Если вам необходимо заказать монтажный чертеж для производственной работы, установки оборудования – наша компания предоставит помощь в проектировании.

Сопутствующие услуги:

РАЗРАБОТКА 2D ЭСКИЗОВ И 3D МОДЕЛЕЙ ДЛЯ СТАНКА С ЧПУ И 3D ПРИНТЕРА.


Дополнительная информация. Что почитать:

ЛУЧШИЕ ФОРМАТЫ ФАЙЛОВ САПР ДЛЯ СОВМЕСТНОГО ИСПОЛЬЗОВАНИЯ 3D И 2D ФАЙЛОВ


Cooperation proposal. Industrial design studio. EN.pdf
349.8 кб, 22 февраля в 10:08
Predlozhenie o sotrudnichestve. Studija promdizajna. RU.pdf
360.2 кб, 22 февраля в 10:08
Обозначение формата
А1 594х841 мм
Формат файла чертежа
Portable Document Format (*.pdf)
Тип чертежа
монтажный чертеж (installation drawing)
Тип услуги:
производственная, профессиональная.
По специфике содержания:
Создающая новые потребительные стоимости (новые изделия).
Классификация услуги ОКРБ 007-2012:
74.90.19.200 Услуги в области инжиниринга.
Гарантии согласно договору
12 месяцев
Срок выполнения от
8 дней
Окончательная цена зависит от сложности, уточняется по факту
400 BYN
Квалификация исполнителя работ
высшее техническое инженер механик образование
Дополнительные услуги:
консультации по вопросам монтажного чертежа
Единица измерения
шт

Удалить товар

Вы точно хотите удалить выбранный товар? Отменить данное действие будет невозможно.

С этим товаром покупают

Удалить товар

Вы точно хотите удалить выбранный товар? Отменить данное действие будет невозможно.